环保服务综合提供商
一、核心工艺:分类施策,精准降解
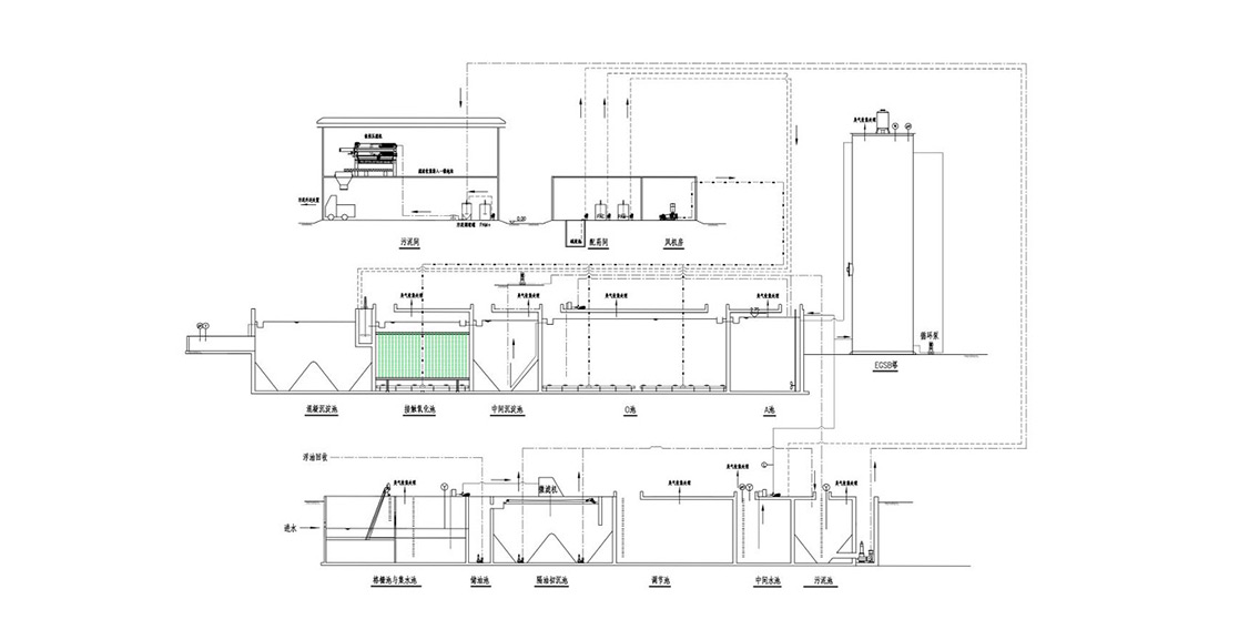
针对制药行业中药提取、化药生产两类废水的处理难点,我司打造定制化核心处理技术,精准破解制药废水治理难题。
两类废水均源于生产核心环节,且存在COD浓度高的共性问题,但水质特性各有差异:中药提取废水含多糖、生物碱等大量有机物,SS 含量大、水质波动大,可生化性较好但易产泡沫;化药生产废水含有机溶剂及卤代烃等难降解物质,部分具生物毒性,COD 浓度极高且可生化性差,处理难度更大。
基于水质特性,我司采用分阶段组合工艺设计思路:废水运用“预处理除杂+ 高级氧化+高效生化降解+深度净化”工艺,经格栅、气浮池、高级氧化等预处理,EGSB、好氧生物反应器等生化降解,最终深度净化达标。

二、广泛应用领域:助力制药行业绿色合规
我公司的制药废水处理技术凭借“分类处理精准化、毒性破除高效化、资源回收最大化”的核心优势,已广泛适配各类制药企业生产需求,提供定制化解决方案,助力企业实现环保合规与绿色转型,本技术适用于中药饮片及中成药生产企业、化学原料药及中间体生产企业、生物制药企业、药用辅料及包装材料生产企业等广大制药企业。
三、实景案例
